【リノベ事例】文京区大塚4丁目/リノベーションプロジェクト
今回は、知性と静寂が寄り添う街「文京区大塚4丁目」に位置する築46年中古マンションのリノベーションをレポートしていきます。

1.地域情報
・大塚 名前の由来
「大塚」という地名は、かつてこの地域に古墳や塚(土を盛り上げて作った小さな丘や土の盛り土)が点在していたことに由来すると伝えられています。中でもひときわ目立つ「大きな塚」があったため、人々はこの地を「大塚」と呼ぶようになったとされています。江戸時代の地誌にも「大塚の地名は大きな塚にちなむ」との記録が残されています。

今昔マップon the webより作成
・地域の歴史
文京区大塚は、江戸時代には小石川村の一部として存在し、武家屋敷や寺院が点在する静かな地域でした。
現在の大塚1~2丁目付近はかつて「大塚窪町」、大塚3~4丁目付近は「大塚上町」と呼ばれていたことがわかる案内板が、地域のさまざまな場所に設置されています。

明治時代以降、都市整備が進むにつれて住宅地として徐々に発展し、交通の利便性も向上。現在では、大学や病院が集まる文教・医療の拠点としての顔を持ち、地域の知的・社会的な活力を支える重要なエリアとなっています。
文京区大塚には、東京メトロ丸ノ内線と有楽町線が通っています。1954年(昭和29年)丸ノ内線の開業に合わせて「新大塚駅」が誕生しました。
JR山手線の「大塚駅」は当初、文京区大塚に設置される予定でしたが、地元住民の反対などがあり豊島区に設置されることとなりました。その名残として、丸ノ内線に「新大塚駅」が誕生しました。

■「新大塚駅」から東京メトロ丸ノ内線で「東京駅」まで約13分
■「新大塚駅」から東京メトロ丸ノ内線で「池袋駅」まで約3分
・これからの文京区
文京区は文教地区に指定され、建築制限があるため、複合娯楽施設のような大規模な再開発プロジェクトは、他の区と比べて少ない傾向にあります。
一方、文京区大塚は豊島区に隣接しているため、池袋駅周辺の開発の影響を受けやすいと考えられます。
東池袋一丁目地区第一種市街地再開発事業
池袋は多様な文化施設が集まる観光地としての魅力がありますが、東口駅前の東池袋一丁目周辺では体験施設や歩行者空間が不足し、玄関口としての機能が十分ではありません。本事業では、東池袋一丁目に安全な歩行者空間や防災機能を備えた都市基盤を整備し、アート・カルチャーの発信拠点を創出します。「みどりの丘」や「みどりのプロムナード」など緑豊かな空間も設け、国際色豊かなにぎわいを生み出します。


住友不動産HPより:https://www.sumitomo-rd.co.jp/uploads/20220726_release_higashiikebukuroicchoume.pdf
※【リノベ事例】豊島区東池袋2丁目/リノベーションプロジェクト にも掲載しています。
・周辺施設
護国寺
徳川綱吉によって創建された、歴史あるお寺。都心とは思えないほど静かで、緑に包まれた癒しの空間です。荘厳な観音堂や、重要文化財の月光殿など、見どころも豊富。春の桜や秋の紅葉が美しく、季節ごとに違った表情を楽しめます。心を整えるパワースポットとしても、多くの人々に親しまれています。

六義園
都心にありながら江戸時代からの景観が残り、四季を通じて様々な表情を見せる庭園として、国内外から多くの観光客が訪れる人気スポットです。特に桜や紅葉の季節はライトアップされ幻想的な景色を楽しむことができます。
1695年(元禄8年)に柳沢吉保により造園され、江戸時代を代表する回遊式庭園として国の特別名勝に指定されています。広大な敷地には桜、紫陽花、紅葉、梅と四季折々の草花や樹木が楽しめます。

キャンパス
多くの教育機関が集まる文京区の中でも、大塚周辺は「学生と研究者のまち」として知られ、静けさと活気が心地よく共存するエリアです。高い教育水準と豊かな文化環境が、地域経済の活性化や安心感のある街づくりにもつながっており、学びと暮らしが調和する魅力的な街として注目されています。

2.物件情報
・立地
最寄りの新大塚駅は徒歩約3分、池袋駅が隣接し、東京駅へも乗り換えなしでアクセス可能な便利な立地です。

周辺には教育機関が多く、学生街らしく飲食店も充実しています。
文京区大塚らしい落ち着いた住宅地には、教育機関や医療施設、公園が点在し、安心して暮らせる環境が整っています。

物件裏に隣接する「大塚公園」は、春は桜、秋は紅葉と、四季折々の自然が楽しめる憩いの場です。公園内には山小屋風の外観をした図書館があり、外には木陰で読書ができるテーブルと椅子も設置されています。
また、地域イベントの会場として活用されているほか、防災拠点としての機能も備えており、災害時には避難場所としての安心感もあります。

・物件の特徴
春日通り沿いに佇む、総戸数100戸の存在感あるヴィンテージマンションです。築46年のレトロな趣を残しながらも、2022年(令和4年)に大規模修繕工事が実施されており、現在も美しく整った状態が保たれています。

アプローチにはスロープが設けられており、利便性を高めるために新たに設置された宅配ボックスも完備されていて、不在時の荷物受け取りにも便利です。さらに、内廊下仕様のため、天候に左右されることなく快適に移動できます。

マンションの裏手には駐車場・駐輪場・バイク置き場が完備されています。駐車場はゆとりのある設計で、車の出し入れもスムーズです。駐輪場とバイク置き場には屋根が設けられており、雨や直射日光から自転車やバイクを守ることで、快適に利用できるだけでなく、劣化も防げます。

・物件概要
所在地:東京都文京区大塚4丁目
交通:東京メトロ丸ノ内線「新大塚」駅徒歩3分/東京メトロ有楽町線「護国寺」駅徒歩11分
構造:鉄骨鉄筋コンクリート・鉄筋コンクリート造陸屋根10階建
総戸数:100戸
専有面積:24.30㎡
築年月:1979年9月
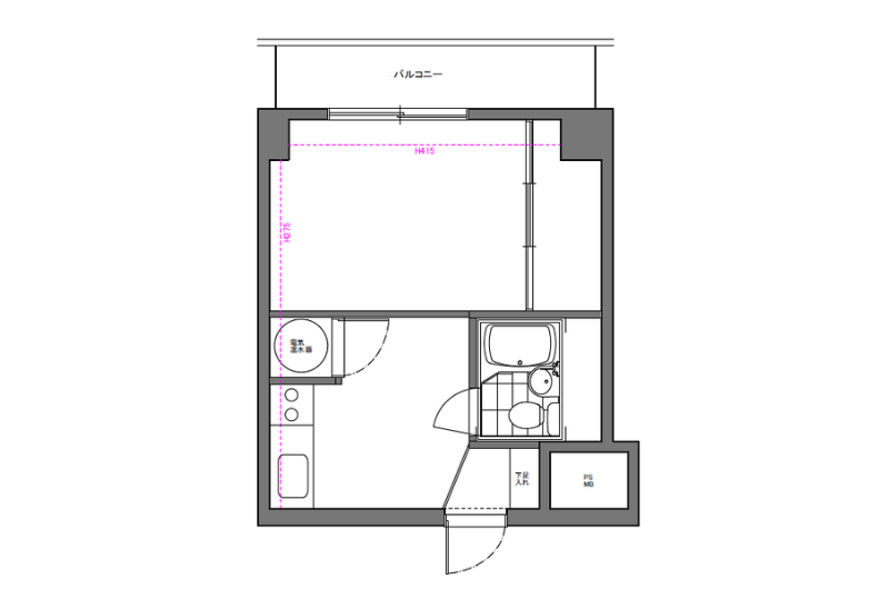
・間取り図< Before>

・室内写真<Before>




3.プランニング
・コンセプト
「学生から社会人まで、暮らしやすさと実用性を備えた物件へ」
文京区は大学や学校が多く、賃貸需要の高いエリアです。今回のリノベーションでは、投資用不動産としてだけでなく、大学に通うお子様向けの住まいとしても検討いただけるよう、「コンパクトでも快適に暮らせる住まい」を目指します。
また、立地と価格のバランスにより、「賃貸より購入を検討したい」「賃貸需要により収益性が見込める」と感じていただける物件となるよう計画しています。
・リノベーションのポイントと担当者の声
POINT1. 有効面積を活かした間取りプラン
今回のリノベーションでは、1Kの壁を取っ払って1Rに変更し、廊下やドアを減らすことで使えるスペースを広く確保します。
また、電気温水器をガス給湯器に変更したり、ユニットバス裏の空間を見直すことで、限られた面積をできるだけ有効に利用できるように工夫していきます。

POINT2. デッドスペースを活用したWIC
水回りを右側にまとめて生まれたスペースを活用し、ウォークインクローゼット(WIC)を設置します。
WICの前には出入りのための使用できないスペースが必要ですが、洗面室の壁に合わせて配置することで、そのスペースを最小限に抑え、効率の良い空間にします。
限られたスペースでも、工夫によりWICを取り入れた間取りが実現可能です。

POINT3. 幅広い入居層に対応できる物件
設備や仕様は必要な品質を確保しつつ、一部はグレードを抑えて計画しています。これにより、幅広い入居者層に選ばれやすい物件を目指します。

また、リノベーションの内容に関わらず、家賃は地域の相場に合わせて設定することが重要です。相場を踏まえた賃料設定を行うことで、入居者が決まりやすく、安定した収益にもつながります。

・間取りBefore/After(予定)

4.解体/施工工事(10月21日更新)
・解体
解体工事が着々と進んでいます。
1Rの解体でも、壁や床をすべて撤去すると驚くほどの廃材が出ます。
可燃・不燃・リサイクルと丁寧に分別すると、その量とコストの大きさがよくわかります。

築年数のある物件で、ベランダの窓には障子付きのサッシがあります。
このサッシは管理組合の工事で設置されたもので、今回は手を加えられません。そこで、障子の雰囲気を活かしつつ、洋室に合うよう窓まわりを加工して仕上げています。

浴室の裏には謎の空間と梁があり、旧間取りでは梁を避ける形でUBや押入れが設置されていました。今回は、この空間1㎝も無駄にせず、梁に合わせて浴室を加工し、空間を最大限に活かす設計に作り直します。

昔のマンションの構造は今とは異なり、上階の配管が天井裏を通っているため、天井上は手を加えられません。そのため、キッチンの天井は現状のままにします。
一方で配管のない居室部分は天井をギリギリまで上げ、できるだけ開放感を確保します。
さらに、床は電気温水器のあった高さに合わせてならし、天井高を最大限に生かします。

・枠組み工事~壁立ち上がり(11月15日更新)
枠組み工事が進み、壁も立ち上がりました。
水回りや居室の配置が明確になってきて、徐々に完成後のイメージが具体的になってきました。

サッシ周りには枠を取り付けて、洋室の雰囲気に合うように仕上げます。これまで障子だった箇所も、カーテンレールの取り付けが可能となり、今後さらに加工が進められる予定です。

これまで謎の空間だった梁下箇所も最大限に使えるように柱を設置しています。

上階の配管があって手を加えられない天井はそのまま残し、それに合わせるように周りの天井を設置していきます。

上階の配管の影響を受けない居室部分は、できるだけ天井の高さを上げて、少しでも開放感を確保します。

これまで開放感のあった玄関は扉で仕切られるため、枠組みが順次設置されていきます。

バルコニー側のスペースにはウォークインクローゼット(WIC)が設置されます。正面には稼働棚が配置され、梁(ハリ)の下にはパイプハンガーが取り付けられる設計です。どちらも梁下のスペースを有効に活用しています。

5.施工完了(12月11日更新)
限られた空間を最大限に活かしながら、日々の暮らしが心地よく、さらに将来的な投資用不動産として賃貸需要にも応えられるよう、細部まで工夫を詰め込んだ魅力のある住まいが完成しました。
・室内写真<After>
✓ 和室から洋室へ。暮らしが広がる生まれ変わり
管理組合で交換されたサッシは手を加えられないという制約がありましたが、窓まわりを丁寧に加工することでカーテンレールを設置できるように調整しました。以前は和室だった空間も、洋室として新たな表情に生まれ変わっています。

明るいトーンでまとめた内装と設備により、軽やかで開放的な雰囲気が生まれ、コンパクトながら住む人が使いやすい空間に。賃貸物件としても十分に魅力を備えた、“選ばれる住まい”へと仕上がりました。
眺望の良さも相まって、室内はいつも明るく、住まいにほどよい開放感をもたらしてくれ ます。

✓ コンパクトでもメリハリある1R
床や建具、設備は明るい色味で統一し、室内に広がりとすっきりとした印象を与えています。
キッチン部分は上階の配管の関係で天井が低くなっていますが、この高低差を活かし、キッチンは低く、居室は高く設定することで、自然にゾーニングされた空間を実現しました。
1Rとい う限られた空間だからこそ、天井の高低差が空間に豊かな表情を加えています。

この居室部分の天井は、以前はキッチンに合わせて低くなっていましたが、今回の計画では見直し、限界まで高さを確保しました。エアコンの配置を比較すると、どれだけ天井高が上がったかが一目で分かります。

✓ 細かな制約を“工夫”に変えた空間設計
梁下をうまく活用してウォークインクローゼット(WIC)を確保し、使いやすい収納スペースを実現しました。また、交換できない玄関扉は室内側に扉を設けて視界から隠し、空間の印象を損なわない工夫を加えています。それ以外の扉は引き戸を採用し、デッドスペースが極力生まれないように設計しました。

・担当者インタビュー
今回の物件はコンパクトながら、図面では分かりにくい電気温水器や“謎の空間”の広さなど、実際に現地で確認して初めて見えてくる特徴が多くありました。築年数が古い物件ならではの造りが随所に残っており、その特徴を理解しながらプランに落とし込む作業は、やりがいのあるプロジェクトでした。
■取り組みの中で意識したこと
コンパクトな空間では、天井の高さや奥行きなどのちょっとした違いが印象に大きく影響するため、間取り図よりも「部屋に入ったときの感覚」を優先して進めました。
また、家具の配置を具体的にイメージし、それに合わせてコンセントの位置まで細かく調整することで、限られたスペースでも使いやすい空間になるよう工夫しました。
コンパクト物件の経験が積み重なっていることで、空間のクセを読み取り、より良い判断ができるようになってきたと感じています。
■今後の課題
小さな空間ほど、ちょっとした違いで居心地が変わるため、これからも“感じ方”を大事にした空間づくりを磨いていきたいと思っています。また、古い物件ならではのクセや予想しづらい部分にも柔軟に対応できるよう、設計の引き出しを増やしていくことも課題です。
今回の物件は、セカンドハウスや学生向けなど、想定していた方からの問い合わせが多く、嬉しい反響をいただいています。今後も地域性やニーズを見ながら、コンパクト物件にも積極的に取り組んでいきたいと思います。
(担当:リノベーション事業部)
・フォトギャラリー





