墨田区横網1丁目/リノベーションプロジェクト
今回は、江戸文化と水辺の風情が残る街「墨田区横網1丁目」に位置する築13年中古マンションのリノベーションをレポートしていきます。

1.地域情報
・横網 名前の由来
「横網(よこあみ)」という地名は、江戸時代に隅田川で行われていた漁業の風景に由来するといわれています。当時この周辺では、漁に使った網を川沿いに横へ広げて干す様子が見られ、その様子から「横に広げた網」=「横網」と呼ばれるようになりました。

今昔マップon the webより作成
・地域の歴史
両国エリアは、江戸時代に 両国橋が架けられたことをきっかけに発展した街です。周辺には見世物小屋や芝居小屋、茶屋が立ち並び、江戸有数のにぎわいを見せる行楽地として多くの人々が訪れました。
また、火災や災害の犠牲者を供養するために建立された 回向院では勧進相撲が行われ、現在の相撲文化へとつながっていきます。
現在でも両国国技館を中心に相撲の街として知られ、隅田川 の水辺や公園とともに、歴史と文化を身近に感じられる街並みが残されています。

・鉄道の歴史
両国エリアの発展には、鉄道の存在も大きく関わっています。明治時代には現在のJR総武線の前身となる路線が開通し、両国駅 は東京東部の交通拠点として発展していきました。
当時は貨物輸送の拠点としても重要な役割を担い、隅田川の水運と結びつくことで、周辺には倉庫や商業施設が集まり街の発展を支えました。
その後、JR総武線の整備や 都営地下鉄大江戸線 の開通により、都心へのアクセスに優れたエリアとして発展。現在では、歴史ある相撲の街としての文化を残しながら、利便性の高い住宅地としても人気を集めています。

■「両国駅」からJR中央線・総武線で「東京駅」まで約15分
■「両国駅」からJR中央線・総武線で「新宿駅」まで約20分
■「両国駅」から都営大江戸線で「新宿駅」まで約30分
・これからの墨田区
墨田区では、将来を見据えたさまざまなまちづくりの取り組みが進められています。交通インフラの整備や駅周辺の再開発など、今後の発展が期待される計画がいくつも検討されています。
地下鉄8号線(有楽町線)の延伸計画
注目されているのが、東京メトロ有楽町線の延伸計画です。いわゆる地下鉄8号線として、豊洲から住吉方面へ延伸する構想が進められており、2030年代半ばの開業が予定されています。開業すれば都心や湾岸エリアへのアクセス向上が期待され、墨田区周辺の交通利便性はさらに高まる可能性があります。

錦糸町まちづくりビジョン
墨田区の中心的なターミナルである錦糸町駅周辺では、「2040年の錦糸町」として将来の街のあり方が検討されています。駅周辺の回遊性向上や都市機能の充実などを通じて、商業・文化・居住が調和した魅力ある街づくりを目指しています。

墨田区ホームページより引用
このように墨田区では、交通利便性の向上とともに、各エリアの個性を活かしたまちづくりが進められており、今後も暮らしやすい街として発展していくことが期待されています。
・周辺施設
両国国技館
両国を象徴する施設として知られる両国国技館は、大相撲本場所の開催地として全国的にも有名なスポットです。本場所の時期には多くの観客が訪れ、街全体が相撲の熱気に包まれます。イベントやコンサートなども開催されるなど、地域のランドマーク的存在となっています。

隅田川
東京を代表する河川のひとつである隅田川は、両国エリアのすぐそばを流れています。川沿いには遊歩道が整備されており、散歩やジョギングを楽しむ人の姿も見られます。水辺ならではの開放的な景観を身近に感じられる点も、このエリアの魅力のひとつです。

すみだ北斎美術館
浮世絵師・葛飾北斎の作品や生涯を紹介する美術館で、墨田区を代表する文化施設のひとつです。印象的な外観の建物も特徴的で、国内外から多くの来館者が訪れています。芸術や文化を身近に感じられるスポットとして親しまれています。

2.物件情報
・立地
歴史と自然、そして文化施設が調和する両国エリアに位置する本物件。徒歩圏内には、江戸時代に大名庭園として整備された日本庭園「旧安田庭園」があり、また「横網町公園」も身近に位置しています。都心にいながら緑を感じられる環境が広がり、静かな時間を過ごせる憩いの場として親しまれています。

JR両国駅に直結する「両国江戸NOREN」では、江戸の町屋をイメージした空間の中に飲食店や土産店が集まり、食事や買い物を気軽に楽しむことができます。

このように、歴史ある庭園や公園、文化施設が身近にそろう落ち着いた住環境が、本物件の大きな魅力です。
・物件の特徴
「両国エリアでも高級感のあるレジデンスとして知られるマンション」
江戸文化が残る両国の街並みに調和するよう、グレーを基調とした落ち着いた印象の外観です。和の趣を感じさせるデザインを取り入れた、風格ある佇まいが特徴です。

エントランスホールは、木の温もりを感じるルーバー天井が印象的な落ち着いた空間です。間接照明の柔らかな光が空間全体を包み込み、上質で穏やかな雰囲気を演出しています。
壁面には重厚感のある素材が用いられ、ホテルライクで洗練された共用空間が広がっています。

敷地の後方には駐車場や駐輪場が整備されており、日々の生活を快適に支える設備が整っています。

ポストや宅配ボックスも美しく整理された空間に設けられており、共用部全体に行き届いた管理体制が感じられます。

また、住戸からの眺望も大きな魅力です。
開放感のある景色の先には東京スカイツリーを望むことができ、都心にいながらも視界の抜けを感じられる贅沢なロケーションが広がります。

・物件概要
所在地:東京都墨田区横網1丁目
交通:JR中央・総武線「両国」駅徒歩6分/都営大江戸線「両国」駅徒歩4分
構造:鉄筋コンクリート造陸屋根14階建
総戸数:52戸
専有面積:72.04㎡
築年月:2012年2月
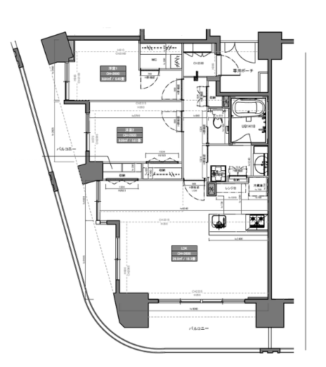
・間取り図< Before>

・室内写真< Before>




3.プランニング(4月21日更新)
・コンセプト
~両国で“最も価値のある一室”を目指した、最上階・角部屋の特別な住まい~

以前から注目していた横網エリアを象徴するマンションの一室。
その中でも、希少性の高い最上階・角部屋を活かしたリノベーションプロジェクトです。
エリアの特性や将来性を踏まえ、「価値を理解できる方に向けた一邸」として、両国エリアでトップクラスの住戸を目指して企画しています。
本住戸では、「誰がどのように使うか」を明確に設定し、それに基づき空間・仕様のすべてを再構築していきます。
・リノベーション担当者の声と施工工事
POINT1. 間取り変更|3LDKから2LDKへ、リビング中心の空間設計

この住戸の最大の特徴は、間取りの再構築です。
もともとの3LDKプランを、あえて2LDKへと変更。ファミリー向けではなく、ご夫婦2人での居住やセカンドハウス利用を想定し、「リビングで過ごす時間」を最も重視した設計としています。
そのため、リビングは面積を大きく確保し、住まいの中心となる空間へ。
居室は2部屋に絞りながらも、それぞれに収納を設け、さらにLDKには大型収納を配置することで、生活感を抑えたゆとりある住空間としています。

また、もともと天井高は約2.6m、躯体ベースでは約2.9mとポテンシャルの高い構造でした。
その高さを活かし開放感のある空間へと仕上げていきます。
単なる間取り変更ではなく、「どこでどう過ごすか」を再定義したプランニングです。
POINT2. キッチン移設|空間の広がりを優先したレイアウト

水回り全体の大きな位置変更は行わず、キッチンのみを従来位置から反対側へ移設していきます。
もともとバルコニー側にダクト経路があり、そのままでは天井に大きな下がりが生じ、空間の広がりを損ねる状態でした。
そこでダクト経路を見直し、配置を調整することで、下がり天井の影響を抑えたすっきりとした空間へと整えていきます。

キッチンの位置と設備計画を工夫することで、天井ラインが整い、視線の抜けを確保。
リビング全体に広がりを感じられる、開放的な空間へと再構築していきます。
POINT3. 仕様グレード|空間全体の質を引き上げる最上位仕様

LDKを一体の空間として捉え、その中でキッチンや内装すべてにおいてグレードを引き上げていきます。
キッチンはLIXILの最上位グレードを採用し、幅2.7mの大型サイズを設置。面材や天板、水栓、設備機器に至るまで細部を選定し、落ち着きのある色調で空間全体をコーディネートしていきます。
さらにカップボードも同仕様で揃え、空間としての一体感を高めていきます。

天井高は、居室・廊下で約2.6m、LDKの折り上げ天井部分で約2.75mを確保。この高さに対応するため建具も特注サイズとし、必然的に上位グレードとなります。
仕上げ材には、タイルやエコカラットを使用し、質感を高め、洗面室は動線を見直すことで収納力も向上させていきます。
コストバランスよりも空間価値を優先し、細部までこだわり抜くことで、完成度の高い住戸へと仕上げていきます。
・間取りBefore/After(予定)

間取り・空間設計・仕様のすべてにおいて一貫した思想のもと、この住戸ならではの価値を最大限に引き出すリノベーションを進めていきます。
完成までの過程も含めて、引き続きご紹介していきます。