大田区中央5丁目/リノベーションプロジェクト
今回は、大田区中央の高台に広がる落ち着いた住宅地に位置する、築45年のヴィンテージマンションのリノベーションをレポートします。
周辺には池上本門寺をはじめとした歴史や自然が広がり、静けさと利便性を兼ね備えたエリアです。そんな魅力ある立地に佇む住まいが、どのように再生されたのかをお伝えします。

1.地域情報
・中央 名前の由来
大田区の「中央」という地名は、旧大森エリアの中心部に位置することから名付けられた地名です。大森駅北側に広がるこのエリアは、もともと入新井や馬込、池上といった地域にまたがっていました。
現在の「中央」という町名は、1960年代の住居表示の実施により誕生した比較的新しい名称です。それまでの地域を整理し、分かりやすさを重視して名付けられました。

今昔マップon the webより作成
・地域の歴史
大田区中央周辺は、旧大森エリアに位置し、かつては海や農地が広がる地域でしたが、都市化とともに住宅地として発展してきました。
大森といえば海苔の養殖が盛んだったことで知られ、「大森海苔」は江戸時代から続く名産です。現在でも、その歴史は『大森 海苔のふるさと館』で知ることができます。

また、近隣には歴史ある池上本門寺があり、地域の文化や歴史を今に伝えています。
現在は落ち着いた住宅街が広がり、歴史と住みやすさを兼ね備えたエリアとなっています。
・鉄道の歴史
大田区中央周辺は、近隣路線の開通とともに発展してきました。
1901年(明治34年)開業の京浜東北線により、大森駅周辺は東京~横浜間を結ぶ交通の要所として発展。その後、1922年(大正11年)の東急池上線開通で沿線の宅地化が進み、通勤利便性が向上しました。さらに1968年(昭和43年)に全線開業した都営浅草線により、都心や羽田空港方面へのアクセスが強化されています。

こうした鉄道網の発展により、中央周辺は利便性と落ち着いた住環境を兼ね備えたエリアとして形成されてきました。
■「西馬込駅」から都営浅草線で「日本橋駅」まで約25分
■「池上駅」から東急池上線で「蒲田駅」まで約5分
■「大森駅」からJR京浜東北線で「東京駅」まで約19分
■「大森駅」からJR京浜東北線で「横浜駅」まで約21分
・これからの大田区開発
大田区の今後は、羽田空港を軸とした国際都市化と、新空港線および蒲田駅周辺再編による都市基盤の進化が大きな柱となっています。これにより、交通・産業・暮らしが一体となり、国際性と利便性を兼ね備えた都市へと発展していきます。
新空港線(蒲蒲線)
現在、蒲田エリアではJRと東急線、京急線が近接しているにもかかわらず、線路が直接つながっていないため、乗り換えの不便さが課題となっています。
新空港線はこの“鉄道ネットワークの空白”を解消し、鉄道網を一体化する役割を担っています。
計画では、東急多摩川線の矢口渡付近から地下化し、蒲田駅地下を経由して京急蒲田駅付近までを結ぶ約1.7kmの路線が整備される予定です。直線距離約800mの未接続区間を補完する形となり、新駅整備や羽田空港方面への直通運転も検討されています。これにより、空港アクセスの向上とともに、蒲田の交通結節点としての価値向上が期待されています。
※【リノベ事例】大田区田園調布本町/リノベーションプロジェクト にも新空港線の掲載をしています。
蒲田駅周辺再編プロジェクト
蒲田駅周辺再編プロジェクトは、駅前の分断や混雑といった課題を解消し、交通・商業・都市機能を一体的に再構築する取り組みです。具体的には、蒲田駅東西の駅前広場の再整備やバスターミナルの再配置、自由通路の拡充による歩行者動線の改善、さらに商業・業務機能を備えた再開発ビルの整備などが計画されています。
新空港線との連携により、地下・地上を含めた立体的な交通ネットワークが形成され、蒲田は空港アクセスの拠点としての役割を強めていきます。こうした再編によって地域の回遊性と利便性が高まり、エリア全体のさらなる発展が期待されています。
・周辺施設
池上本門寺
池上本門寺は、大田区を代表する文化・観光スポットであり、日蓮宗の大本山の一つとして知られる歴史ある寺院です。
毎年10月には「お会式」が開催され、万灯行列とともに多くの参拝客で賑わう伝統行事として親しまれています。
また、隣接する池上梅園では、春になると梅の花が咲き誇り、落ち着いた散策スポットとして人気を集めています。歴史と自然が調和した空間として、四季を通じて訪れる人を楽しませています。

羽田空港
羽田空港は、近年の国際線拡充により大きく姿を変え、国際ハブ空港としての存在感を高めています。
第3ターミナルの整備により24時間対応の国際拠点として機能が強化され、多くの都市と直結する空港へと進化しました。さらに、商業施設「江戸小路」や展望デッキ、温浴施設も充実し、観光や滞在も楽しめる空間へと発展しています。

平和島
平和島と聞くとボートレース場を思い浮かべる人も多いものの、ボートレース平和島は近年大きくその姿を変えています。
スタンドや観覧席のリニューアル、設備の充実により快適性が向上し、フードコートやキャッシュレス決済の導入も進んでいます。現在では、初心者や女性でも気軽に訪れられる開放的なレジャースポットとなっています。

2.物件情報
・立地
高台の落ち着いた住宅地に位置する本物件は、静かな住環境と利便性を兼ね備えた点が魅力です。周辺には緑が多く、低層住宅が広がる穏やかな街並みの中で、ゆとりある暮らしが実現できる環境となっています。
また、隣接する佐伯山緑地は、学校跡地を活かした緑豊かな空間で、気軽に散策を楽しめる環境です。

・物件の特徴
深みのある赤紫色のタイルと青い屋根が印象的な、重厚感と風格を備えたヴィンテージマンションです。高台の斜面地に沿って建てられており、7階建てでありながら周囲には圧迫感を与えず、落ち着いた佇まいを見せています。
クラシカルな意匠で統一された外観は、まるで映画のワンシーンのような雰囲気を纏い、どこか時を遡ったかのような趣を感じさせます。

さらに、2022年(令和4年)には大規模修繕工事が実施されており、築年数を感じさせない良好な管理状態も魅力です。
エントランスは住戸階にあたる5階部分に設けられ、階段や緩やかな坂道を上るアプローチが特徴です。トップライトから自然光が差し込む明るい空間や重厚な門扉など、細部にまでこだわりが感じられ、オートロックも備えた安心の仕様となっています。

また、手入れの行き届いた植栽や共用部に設けられたベンチなど、居住者がゆったりと過ごせる空間も魅力です。建物内を歩くだけでも、非日常的で落ち着いた雰囲気を感じられる造りとなっています。
敷地内には建物をぐるりと囲む進入路が整備されており、サブエントランスから駐車場へとスムーズにアクセスできる設計となっています。斜面地を活かした立体的な配置により、ゆとりのある動線が確保されています。
落ち着いた住環境の中で、日常の利便性にも配慮された計画となっています。

・物件概要
所在地:東京都大田区中央5丁目
交通:都営浅草線「西馬込」駅徒歩17分
構造:鉄筋コンクリート造瓦葺陸屋根7階建
総戸数:40戸
専有面積:104.16㎡
築年月:1981年3月
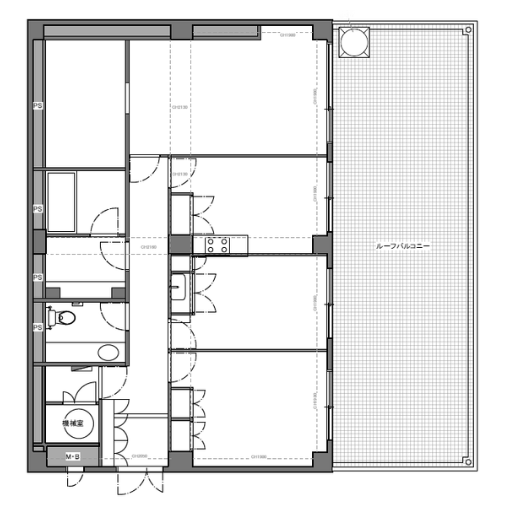
・間取り図< Before>

次回は企画の詳細について掘り下げていきます。
更新まで今しばらくお待ちください。


