新宿区新宿1丁目/リノベーションプロジェクト
今回は、新宿御苑の自然と新宿の利便性を兼ね備えた街「新宿区新宿1丁目」に位置する築47年中古マンションのリノベーションをレポートしていきます。

1.地域情報
・新宿 名前の由来
新宿の名前の由来は、江戸時代にさかのぼります。
甲州街道は日本橋から甲府へと続く幹線道路で、当時は最初の宿場までの距離が長かったため、元禄時代に新たな宿場町「内藤新宿」が設けられました。
「新」は新しく作られたこと、「宿」は宿場町を意味し、「新しい宿場」が名前の由来です。この名称は、現在の新宿にも受け継がれています。

今昔マップon the webより作成:https://ktgis.net/kjmapw/
・地域の歴史
23区のほぼ中央に位置する新宿区は、1947年(昭和22年)に旧四谷・牛込・淀橋の3区が統合して誕生しました。名称は、江戸時代の宿場町「内藤新宿」に由来するとともに、新宿御苑や新宿駅の高い知名度も背景に採用されています。
1923年(大正12年)の関東大震災では比較的被害が少なかったことから、その後の復興期に人や商業機能が流入し、街の基盤が形成されていきました。さらに戦後の復興に伴い、焼け野原から急速に再建が進み、新宿は東京を代表する繁華街へと発展していきます。

その後、1949年(昭和24年)には新宿御苑が一般公開、1950年(昭和25年)には歌舞伎町に新宿区役所が設置されるなど都市機能が整備され、1991年(平成3年)には東京都庁舎が西新宿に移転し、現在では行政・商業・観光が集まる日本有数の都市へと成長しています。

・鉄道の歴史
1885年(明治18年)、現在の山手線の前身となる路線の開業にあわせて新宿駅が誕生しました。当時は規模の小さな駅でしたが、交通の要所として徐々にその役割を強めていきます。
その後、中央線の開通や私鉄各線の乗り入れにより、新宿は多方面へアクセスできる拠点へと発展しました。昭和初期にかけて利用者が増加し、駅周辺には商業施設や繁華街が形成されていきます。

戦後になると路線網はさらに拡大し、新宿駅は国内有数のターミナルへと成長しました。鉄道の発展とともに人の流れが集まり続けたことが、現在の新宿の都市機能を支える大きな要因となっています。

■「新宿御苑前駅」から東京メトロ丸ノ内線で「新宿駅」まで約3分
■「新宿御苑前駅」から東京メトロ丸ノ内線で「東京駅」まで約15分
・これからの新宿区
新宿区では、複数の再開発プロジェクトが進行しており、街の姿は今後さらなる発展が期待されています。
(仮称)新宿駅西南口地区 南街区共同開発/北街区共同開発
この再開発は、都庁方面へのアクセス改善と新宿駅全体の混雑緩和を目的としています。特に南口から西側のオフィス街へ向かう人の流れをスムーズにし、移動のしやすさ向上が期待されています。
新宿駅が「迷いやすい」と言われるのは、複数の鉄道が乗り入れ、地上・地下・高架が重なる複雑な構造に加え、東西の移動がしづらく人の流れが交差しやすいためです。今回の開発では動線を整理し、歩行者デッキなどを整備することで、人の流れを分散させ、より分かりやすく移動しやすい駅への改善が目指されています。

出典:JR東日本「新宿駅西南口地区の開発計画について」https://www.jreast.co.jp/press/2022/20220413_ho03.pdf
※【リノベ事例】渋谷区代々木5丁目/リノベーションプロジェクト にも周辺開発を掲載しています。
(仮称)新宿御苑前計画
新宿御苑前駅周辺(新宿区新宿1丁目)で進められている、店舗・事務所・住宅からなる地上16階・地下1階の複合施設の再開発です。
このエリアは、新宿駅周辺のような大規模開発が少なく、住宅とオフィスが混在する落ち着いた街並みが特徴です。そのため、周辺環境や景観に配慮した中規模開発として進められています。
2026年7月に着工し、2029年12月末の竣工が予定されています。

・周辺施設
新宿御苑
新宿の中心にありながら豊かな自然を感じられる、都内有数の公園です。広さ約58ヘクタール(東京ドーム約12個分)を誇り、園内には芝生や木々が広がり、都会の喧騒を忘れてゆったり過ごせます。
日本庭園・フランス式庭園・イギリス風景式庭園といった多彩な景観を楽しめるのも魅力で、春には約1,000本の桜が咲く花見スポットとしても知られています。
新宿駅から徒歩圏内というアクセスの良さもあり、気軽に自然を感じられる場所として多くの人に親しまれています。

歌舞伎町
歌舞伎町周辺には、「東急歌舞伎町タワー」をはじめ、新宿ピカデリーや花園神社など、観光でも楽しめるスポットが点在しています。
東急歌舞伎町タワーでは最新のエンターテインメントを楽しめるほか、花園神社では歌舞伎町の近くにありながら下町の雰囲気も感じられる、日本らしい落ち着いた雰囲気を感じることができます。映画館の新宿ピカデリーも含め、昼夜を問わず楽しめるエリアとなっています。

2.物件情報
・立地
新宿御苑に近い落ち着いた環境と、新宿駅エリアの利便性をあわせ持つ点が魅力の本物件。周辺は住宅とオフィスが混在しており、新宿アドレスでありながら比較的静かな住環境が保たれています。
新宿三丁目や新宿駅へもアクセスが良く、百貨店や商業施設を日常的に利用できる利便性の高さも魅力です。

また、最寄りの新宿御苑前駅周辺には多彩な飲食店が揃い、落ち着いた雰囲気のお店も多く、日々の食事や外出も楽しめる環境が整っています。
利便性と落ち着いた住環境を兼ね備えた、バランスの良い立地といえます。
・物件の特徴
角地に位置する総戸数66戸のマンションで、レンガ調タイル張りの外観が印象的な落ち着いた佇まいです。間取りは1DK~3LDKまで幅広く、シングルからファミリーまで多様なライフスタイルに対応しています。2014年(平成26年)には大規模修繕工事が実施されており、長期的な維持管理にも配慮された安心感のある物件です。

共用部分には宅配ボックスが設置されており、不在時の荷物受け取りにも便利です。また、日勤の管理人が常駐しているため、セキュリティ面でも安心して暮らせます。
建物1階部分には駐車場・駐輪場・バイク置き場が整備されており、敷地内もきれいに管理されています。

・物件概要
所在地:東京都新宿区新宿1丁目
交通:東京メトロ丸ノ内線「新宿御苑前」駅徒歩6分
構造:鉄骨鉄筋コンクリート造9階建
総戸数:66戸
専有面積:31.60㎡
築年月:1978年7月
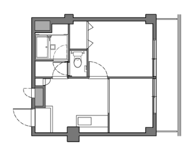
・間取り図< Before>

・室内写真< Before>


次回は企画の詳細についてご紹介予定です。
ぜひ楽しみにお待ちください。