【リノベ事例】豊島区長崎5丁目/リノベーションプロジェクト
今回は、閑静な低層住宅地「豊島区長崎5丁目」に位置する築44年中古マンションのリノベーションをレポートしていきます。

1.地域情報
・長崎 名前の由来
「長崎」という地名は、この地域の地形的特徴に由来していると考えられます。かつてこの地域は「長い崎」または「長い丘陵地」があったことから「長崎」と名付けられたと言われています。江戸時代の地誌「新編武蔵風土記稿」にもこの地名が記載されており、古くからこの名で呼ばれていたことがわかります。
地名は長い歴史を通じて変わらず、現代に至るまで「長崎」として親しまれています。

今昔マップon the webより作成
・地域の歴史
この地域は江戸時代には農村地帯で、明治以降に徐々に住宅地として発展していきました。
地名が示すように、実際に長崎地域には緩やかな丘陵地があり、高低差のある地形が今も残っています。
豊島区長崎地域の歴史は、江戸時代から現代まで興味深い変遷をたどっています。
江戸時代、この地域は武蔵国豊島郡に属する農村地帯でした。主に農業が営まれ、江戸への野菜供給地として機能していました。当時は「長崎村」と呼ばれ、周辺には雑木林が広がる自然豊かな土地でした。本格的な都市化は、1924年(大正13年)の関東大震災後、都心から人口が流入し、住宅地としての開発が進みました。特に1927年(昭和2年)に武蔵野鉄道(現在の西武池袋線)が開通したことで、交通の便が良くなり急速に発展しました。
昭和初期には「トキワ荘」と呼ばれるアパートが建てられ、1950年代から60年代にかけて手塚治虫や藤子不二雄、石ノ森章太郎など後に日本を代表する漫画家たちが住み、創作活動を行ったことで文化的にも重要な地域となりました。

高度経済成長期には住宅地としてさらに発展し、都会的な要素と下町的な要素が混在する独特の街並みが形成されました。
このように長崎地域は、農村から住宅地へ、そして文化的な側面も持つ複合的な地域へと発展してきた歴史を持っています。
■「東長崎駅」から西武池袋線で「池袋駅」まで約5分
■「千川駅」から東京メトロ有楽町線・副都心線で「池袋駅」まで約4分
■「千川駅」から東京メトロ有楽町線で「銀座一丁目駅」まで約25分
■「千川駅」から東京メトロ副都心線で「渋谷駅」まで約20分
・これからの豊島区
池袋駅西口エリアでは、大規模なプロジェクト「池袋西口地区市街地再開発事業」が始まります。東武百貨店や西口公園などが広がるエリアで4つの街区にわかれて建設が進められていきます。
この事業は国が指定する「国家戦略特区」に追加指定された地区となり、国として重要な位置付けの再開発となったことで、再開発計画推進のスピードが上がり、迅速な再開発・まちづくり計画が行われていくことが期待されています。

出典:豊島区ホームページより
池袋駅西口地区市街地再開発事業
これまで池袋駅西口には目立った高層ビルがありませんでしたが、この開発により超高層ビルが3棟建設される計画です。

老朽化した建物や小規模宅地が多い区域を再整備し、土地の合理的かつ健全な高度利用を図ることを目的としています。また、歩行者中心の都市構造への転換を目指し、安全で快適な歩行者空間の整備が進められています。
さらに、文化・芸術の育成・創造・発信・交流を促進し、商業・業務機能を集積することで、国際アート・カルチャー都市の形成を目指しています。

工事は2027年から始まり、全体の竣工は2043年と大規模なプロジェクトになります。ターミナル駅が変貌することで鉄道沿線の再開発も期待できます。
IT tower TOKYO(池袋西口プロジェクト)
池袋駅西口エリアの開発を先導する、池袋マルイ跡地に地上27階地下4階の超高層ビルが建設中です。低層部に商業施設、中高層部にオフィスを配置し、アート・カルチャーを魅力とする街に生まれ変わります。2025年11月末に竣工し、2026年春に開業予定です。

出典:ITO tower TOKYO公式より
・周辺施設
サンシャインシティ
池袋駅の象徴的な複合施設として知られ、水族館や展望台、プラネタリウムなどのレジャー施設を備えています。さらに、ショッピングセンターも併設されており、多彩な店舗や飲食店が集まる賑やかな空間が広がっています。劇場やイベントスペースもあり、エンターテインメントを満喫できる場所としても知られていて、大人から子供まで幅広い世代が楽しめる環境が整っています。
豊島区立トキワ荘マンガミュージアム
2020年(令和2年)に開館しマンガ文化の発信地としての歴史を継承しています。
このミュージアムの最大の魅力は、当時の生活空間を細部まで忠実に再現していることです。また、展示室では貴重な原稿や愛用品、創作時の資料が展示されており、マンガ文化を肌で感じることができます。
単なる博物館ではなく、日本が世界に誇るマンガ文化の聖地として、貴重な文化施設になっています。
東京芸術劇場
高さ49mのガラスのアトリウムが特徴的な外観は、建築そのものが芸術作品といえる洗練されたデザインで存在感を放っています。
施設内には音響設計が優れたコンサートホールがあり、2012年(平成24年)の大規模改修によって、世界最高水準の音響空間が実現しました。この施設は、上演の場としてだけでなく、芸術文化の発信地としても重要な役割を果たしており、都市と芸術の調和を象徴する存在として、池袋の文化的中心地を築いています。

2.物件情報
・立地
豊島区の西側は山手通りを隔てていることもあり、閑静な住宅地域になっています。
かつて多くの文化人に好まれた場所でもあり、特有の落ち着いた雰囲気が漂っています。
対象物件は、池袋の賑やかな繁華街から少し離れた場所にあり、池袋駅から2駅の東長崎駅と千川駅の中間に位置する低層住宅地の落ち着いた雰囲気が特徴です。どちらの駅前にも大型スーパーや飲食店が揃い、特に東長崎駅周辺には商店街があり、地域の温かみを感じられるお店が並んでいます。都市部へのアクセスと穏やかな住環境が調和した、暮らしやすいエリアといえます。

・物件の特徴
中学校や高校が近くにあり、戸建てやマンションが整然と並ぶ静かな住宅地に位置しています。白を基調とした明るい外観に、青い瓦屋根と豊かな植栽が調和し、南国の雰囲気があり人目を引く佇まいです。

中庭や建物の裏手には整備された駐輪スペースがあり、清潔で丁寧に利用されています。また、共用部の清掃も行き届いており、快適に使える環境が保たれています。

・物件概要
所在地:東京都豊島区長崎5丁目
交通:西武池袋線「東長崎」駅徒歩8分/東京メトロ有楽町線・副都心線「千川」駅徒歩9分
構造:鉄筋コンクリート造陸屋根3階建
総戸数:15戸
専有面積:62.64㎡
築年月:1981年6月
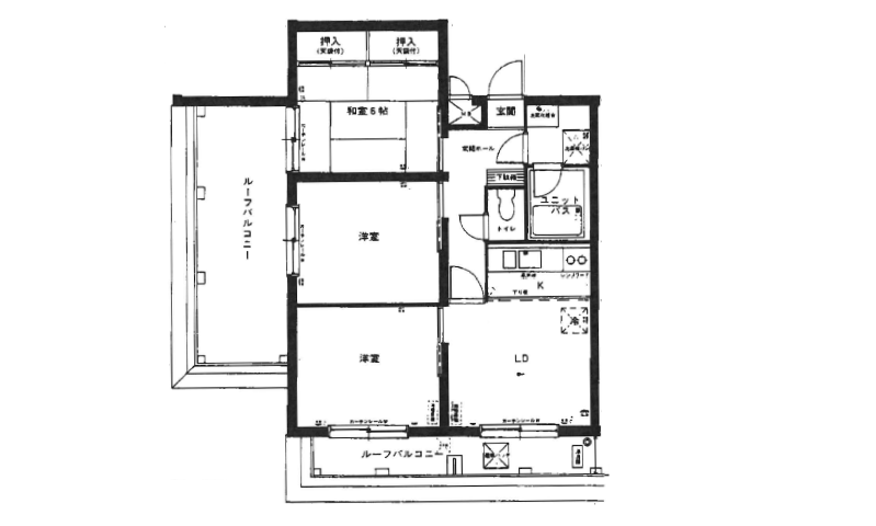
・間取り図< Before>

・室内写真<Before>



3.プランニング
・コンセプト
「池袋周辺を生活圏とし、賃貸ではなく購入を希望する方に向けて、内装費を抑えつつ機能性を確保した物件を、手の届きやすい価格で提供する」
眺望に恵まれ、開放的な景色を楽しめる住環境に加え、上階に住人がいないため、静かで快適に過ごせます。さらに、日当たりや風通しが良く、外からの視線を気にせずプライバシーを確保できる点も魅力です。こうした住まいの特長を活かしながら、最新の設備と快適性を備えた空間へとリノベーションを進めていきます。
・リノベーション担当者の声と施工工事
Plan 1. 間取りを変えずに、居住空間を最大限に活用する
Plan 2. コストと機能性のバランスを取りながら、快適な生活空間を整える
Plan 3. 広がりを感じるLDK設計、壁付けキッチンと白い建具の調和
Plan 1. 間取りを変えずに、居住空間を最大限に活用する
一般的なマンションでは、四方に柱(下記図面右の赤枠箇所)があるため、家具の配置に制限が生じることがあります。しかし、今回のマンションは壁式構造を採用しており、コンクリートを打設して組み上げたことで、室内に凹凸がなく、広々とした空間を実現しています。そのため、家具配置の自由度が高く、さらに耐震性にも優れた安心の住まいとなっています。

この壁式構造は、建物の強度を支えるため解体ができないため(上記図面左の黄色箇所)、既存の間取りを活かしながら、生活動線を考慮した仕様や建具の工夫を取り入れ、快適な住空間へと整えていきます。
Plan 2. コストと機能性のバランスを取りながら、快適な生活空間を整える
コンセプトにある「内装費を抑えつつ機能性を確保した物件を、手の届きやすい価格で提供する」という方針を実現するため、キッチンを壁付けにするなどの工夫を施し、洗面や浴室には一般的な仕様の設備を採用。コストパフォーマンスに優れた仕様で、快適な住環境を整えていきます。

Plan 3. 広がりを感じるLDK設計、壁付けキッチンと白い建具の調和
キッチンを壁付けにすることで、LDKのスペースを広々と活用でき、より開放的な空間を実現します。さらに、LDKに隣接する部屋を活用することで、リビングとダイニングの空間を分けて使うことができ、柔軟なレイアウトが可能になります。また、建具を白にすることで壁と一体化させ、圧迫感のないすっきりとした空間を演出します。

・間取りBefore/After(予定)

4.解体/施工工事(6月12日更新)
・解体
解体工事が完了し、当初のプランに沿って順調に工事が進んでいます。

パイプスペースの幅が想定よりも抑えられたため、ユニットバスのサイズを1216サイズから1316サイズへ10㎝伸長し、より快適な仕様にすることが可能となりました。

畳の部屋は洋室に変更するため、二重床にして他の部屋との高さを揃えます。

・枠組工事~壁立ち上がり(7月12日更新)

通常は、枠組工事や壁の立ち上げが始まると、室内の全体像が徐々に見えてきて、部屋の完成までの過程を実感できます。しかし、このマンションは壁式構造のため、新たな壁設置がなく、目に見える変化が分かりにくくなっています。
それでも、配管の整備や設備の設置によって、工事が着実に進んでいる様子がうかがえます。

5.施工完了(9月1日更新)
この部屋の魅力は、なんといっても全ての部屋がバルコニーに面していること。日中は自然光だけで十分明るく、電気をつけなくても快適に過ごせます。
さらに、窓からの眺望も抜群で、開放感あふれる空間に。そんな光と景色を最大限に活かす形でリノベーションを行い、快適で心地よい住まいに生まれ変わりました。

✓ 広さと使い勝手を兼ね備えた洋室へリフォーム
✓ 白を基調に広がりを感じるLDK空間
✓ ブラウン×ホワイトで上質に仕上げた浴室と脱衣所
・室内写真<After>
✓ 広さと使い勝手を兼ね備えた洋室へリフォーム
和室から洋室へと変更した部屋は、二重床を採用して他の部屋との床高さを揃えたうえでクローゼットも新設しました。

2つの洋室にはそれぞれ大容量のクローゼットを設置しており、洋服や荷物もすっきり収納できます。家族で快適に過ごせるだけでなく、窓からの光と眺望を存分に楽しめる空間になっています。
さらに、玄関には収納力の高いシューズボックスを完備。靴や小物も整理しやすく、家族での暮らしにぴったりの収納力です。
収納面の使い勝手の良さと、暮らしやすさのバランスを意識した設計になっています。

✓ 白を基調に広がりを感じるLDK空間
LDKは白を基調にした壁付けキッチンで、空間を広く活用できる設計です。白に近いグロッシーバーチのカラーを採用し、自然に溶け込みながら空間の広がりを演出しています。ウォールキャビネットを設置し収納力も十分に確保しています。
また、クローゼットやドアの建具も白で統一することで圧迫感を抑え、床に濃い色を用いることで、空間全体にメリハリを加えています。

✓ ブラウン×ホワイトで上質に仕上げた浴室と脱衣所
浴室には1216サイズから一回り大きい1316サイズのユニットバスを採用し、ゆったりとした広さを確保しました。広さを活かしてブラウンカラーを取り入れたことで、落ち着きのある雰囲気に仕上げています。
脱衣所は白を基調に、洗面台下の収納と洗濯機上の可動棚を組み合わせ、圧迫感を抑えつつスペースを有効に活用しています。

家全体を通して、光・眺望・収納・使い勝手のバランスが考えられた、心地よく暮らせる住まい。家族みんなが快適に過ごせる空間に生まれ変わっています。
・担当者インタビュー
■プランニングでの色選びが成功
今回のリノベーションでは、間取りを大きく変えられない分、設備や建具の色選びが重要なポイントとなりました。
キッチンの色やLDKに面した引き戸は、それぞれが強く主張しすぎないよう調整し、空間全体に一体感を持たせています。色や配置の工夫により、実際より広々とした印象の空間に仕上がりました。
■自由が限られる壁式構造を実感
図面からの唯一の変更点は「LDKと洋室を仕切る引き戸」でした。
当初は引き戸の位置をLDK側に移すことを検討していましたが、壁式構造のためコンセントの位置を動かせず、最終的には開閉方向を左右逆にすることで対応しました。
壁式構造は間取りの自由度が限られ、配線ひとつでも容易に変更できないことを改めて実感した場面です。

■ご成約の報告|理想のターゲット層にマッチ!
工事中にもかかわらず2組のお客様をご案内でき、その中のお一組とご契約に至りました。コンセプト通り、この地域を生活圏とされている方で、狙い通りのターゲット層に早い段階でご縁をいただけたことは大変嬉しい出来事でした。
工事完了後にも現地を確認いただき、仕上がりにも満足していただけたことで、双方にとって良い結果となったと感じています。
新しく生まれ変わったこのお部屋が、これからの暮らしを心地よく、素敵に彩ってくれることを願っています。
(担当者:リノベーション事業部 菊地)
・フォトギャラリー





